Market Place, Bolsover, S44
£1,400 pcm
-
Status
To Let
Property Summary
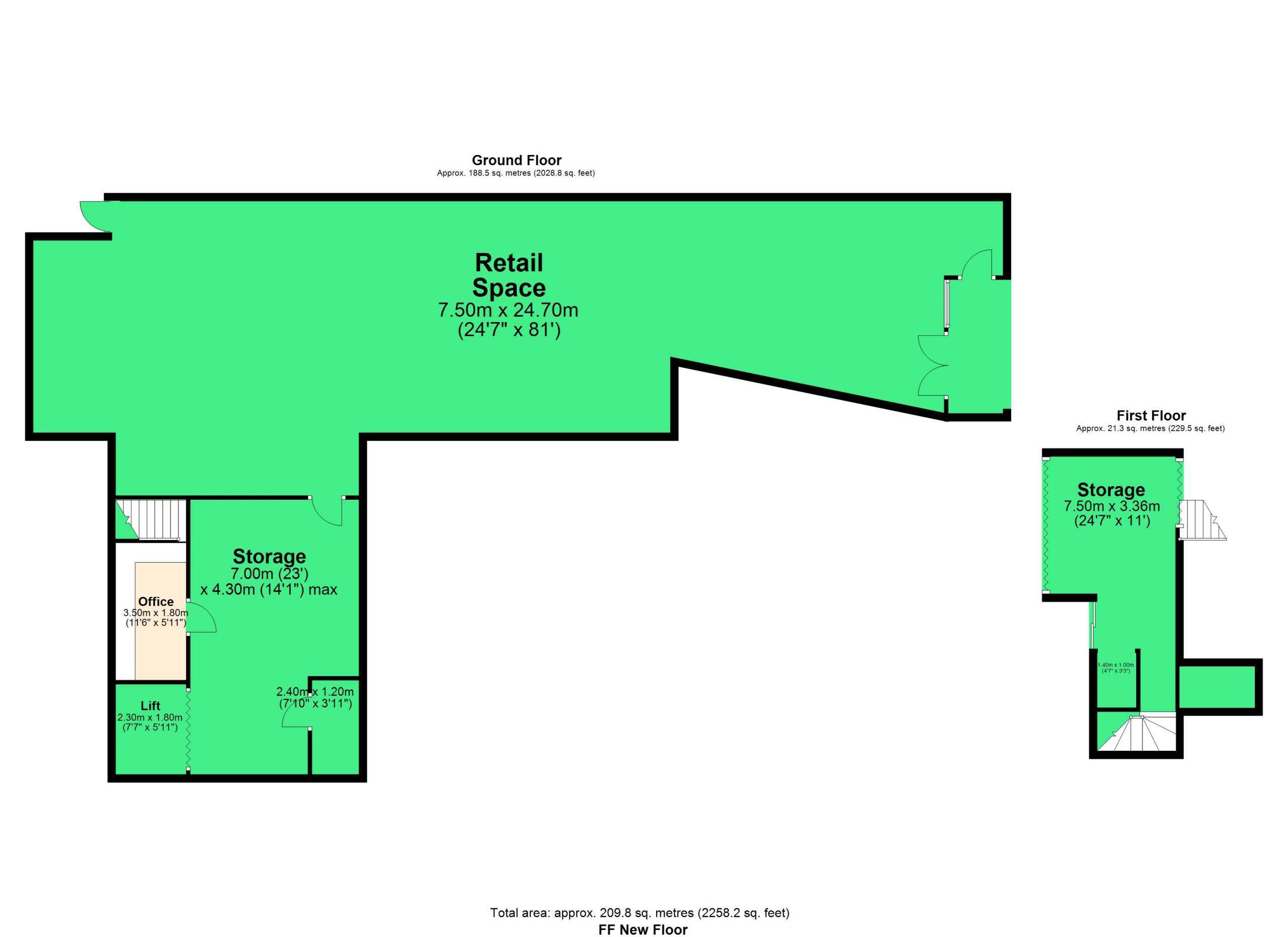
Prime 2,200 Sq Ft Town Centre Commercial Unit – Bolsover
Available To Let – £16,800 per annum
Positioned in the heart of Bolsover town centre, this versatile 2,200 sq ft ground floor commercial unit offers a rare opportunity for businesses seeking prominent high street exposure.
The space is open plan and ready for fit-out, ideal for a variety of uses including retail, showroom, fitness, office, clinical, or food & beverage (subject to any necessary consents).
While the unit is currently presented as a shell, it offers a blank canvas for tenants to tailor the interior layout to suit their needs. Please note: WC and kitchen facilities are not currently installed – tenant would be responsible for fitting these.
Disclaimer
Wilson Estate Agents has prepared these property particulars as a general guide for prospective purchasers. While every effort has been made to ensure accuracy, all descriptions, dimensions, references to condition and necessary permissions for use and occupation are given in good faith and believed to be correct, but they are not intended to constitute part of an offer or contract.
Any intending purchasers should not rely on them as statements or representations of fact, but must satisfy themselves by inspection or otherwise as to the correctness of each of them. All measurements are approximate, and the services, systems, and appliances shown have not been tested by Wilson Estate Agents and no guarantee as to their operating ability or efficiency can be given.
We recommend that all information provided is verified independently by prospective buyers, including but not limited to title, tenure, and planning consents.
- Approx. 2,200 sq ft of flexible commercial space
- Prominent town centre location with strong footfall
- Generous shop frontage and signage potential
Location
Market Place, Bolsover, S44






