The Osmond, Bromley Gardens, Mastin Moor
£320,000
-
Bedroom
3
-
Bathroom
2
-
Status
For Sale
Property Summary
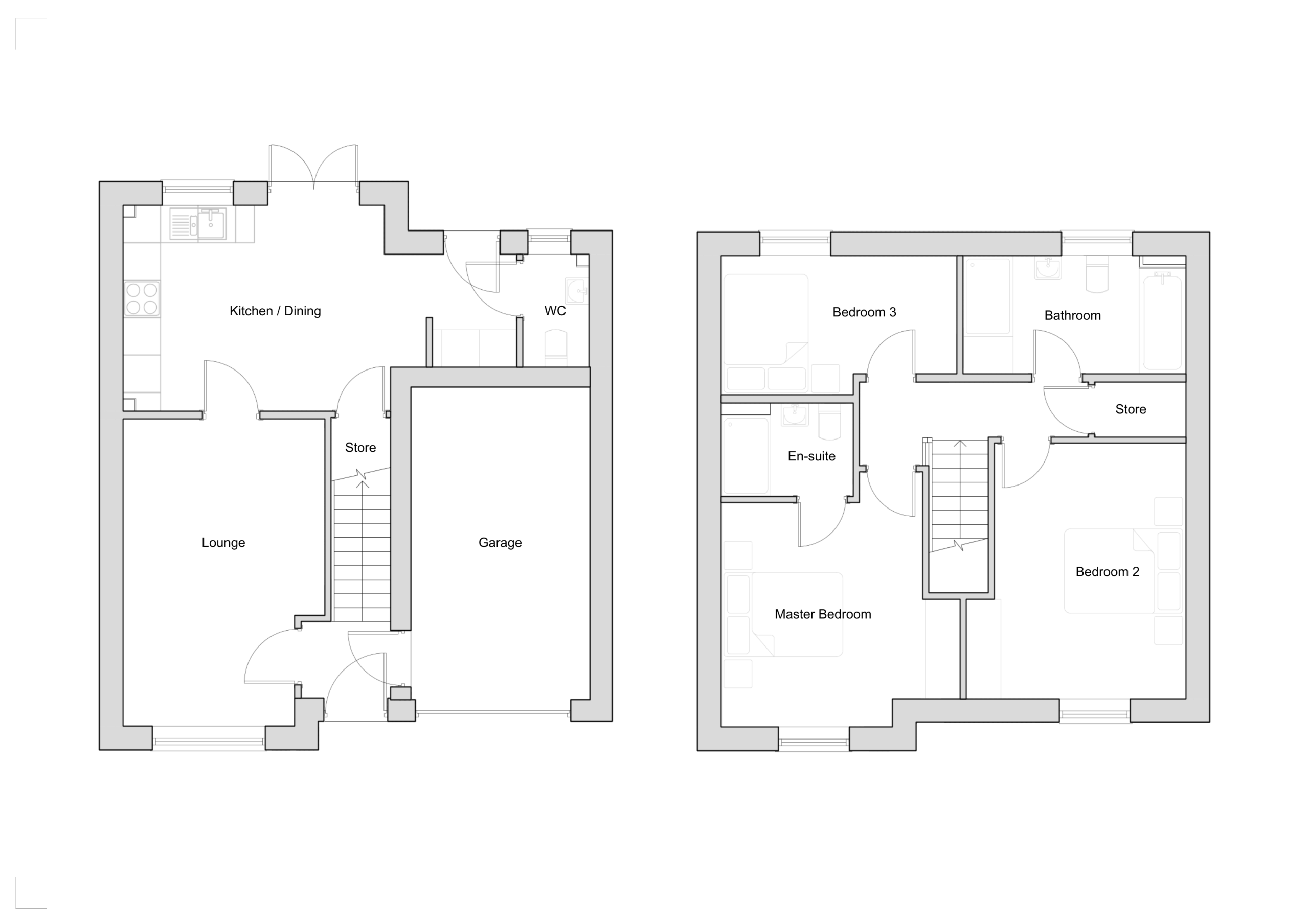
Introducing The Osmond, a thoughtfully designed three-bedroom detached home situated within an exclusive development of just 22 bespoke homes. Upon entering through the front door, you are welcomed into a spacious lounge that leads into an open-plan kitchen and dining area, creating an ideal space for both relaxing and entertaining. A convenient downstairs WC adds to the practicality of the ground floor layout.
Upstairs, the main bedroom benefits from an ensuite, while two additional double bedrooms provide ample space for family or guests. The main bathroom is impressively proportioned and features full height tiling, as do the ensuite facilities, lending a touch of luxury to every-day living. The property boasts an integral garage, offering secure parking and additional storage options.
Designed with the future in mind, this home comes equipped with an electric vehicle charging point, solar panels that enhance energy efficiency and contribute to reduced running costs, and a modern air source heat pump. The home is completed with a turfed garden. There blend of rural tranquillity and convenience, with picturesque countryside walks just moments away, as well as the M1 motorway located nearby for swift connections north and south. Excellent rail links and airports are also within easy reach, making this an ideal choice for commuters and those who value accessibility.
Lounge 16' 4" x 10' 9" (4.98m x 3.28m)
Kitchen/ Dining 11' 0" x 20' 9" (3.35m x 6.33m)
WC 6' 1" x 3' 7" (1.85m x 1.09m)
Principle Bedroom 11' 11" x 12' 8" (3.63m x 3.86m)
Ensuite 5' 1" x 7' 1" (1.55m x 2.16m)
Bedroom 2 13' 7" x 11' 8" (4.14m x 3.56m)
Bedroom 3 7' 6" x 12' 6" (2.29m x 3.81m)
Bathroom 6' 5" x 11' 10" (1.96m x 3.61m)
Disclaimer
Wilson Estate Agents has prepared these property particulars as a general guide for prospective purchasers. While every effort has been made to ensure accuracy, all descriptions, dimensions, references to condition and necessary permissions for use and occupation are given in good faith and believed to be correct, but they are not intended to constitute part of an offer or contract.
Any intending purchasers should not rely on them as statements or representations of fact, but must satisfy themselves by inspection or otherwise as to the correctness of each of them. All measurements are approximate, and the services, systems, and appliances shown have not been tested by Wilson Estate Agents and no guarantee as to their operating ability or efficiency can be given.
We recommend that all information provided is verified independently by prospective buyers, including but not limited to title, tenure, and planning consents.
- The Osmond | Three-Bedroom Detached Home
- Exclusive Development Consisting of 22 Bespoke Homes
- Fitted With Solar Panels To Enhance Energy Efficiency and Reduce Running Costs
- Future-Ready Home With Electric Vehicle Charging Point
- Countryside Walks On Your Doorstep
- M1 Motorway Just Minutes Away, Offering Quick Links North And South, With Nearby Rail Connections And Airports
- Full Height Tiling In Bathrooms & Ensuites
- Turfed Gardens
- Modern Home Featuring An Air Source Heat Pump
- First Release Now Available
Location
The Osmond, Bromley Gardens, Mastin Moor

