The Shelby, Bromley Gardens, Mastin Moor
£310,000
-
Bedroom
3
-
Bathroom
2
-
Status
For Sale
Property Summary
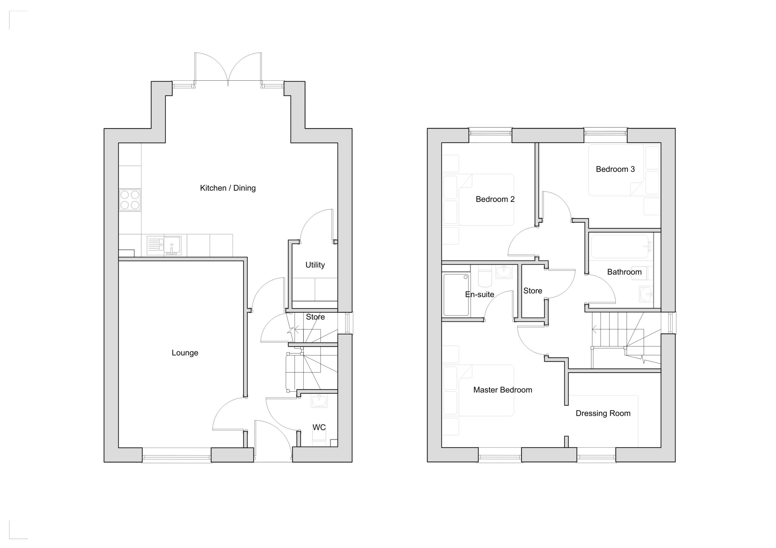
Introducing The Shelby, a beautifully appointed three-bedroom detached home set within an exclusive development of just 22 bespoke properties, designed to offer a blend of style, comfort, and future-ready living. Step inside to discover a thoughtfully planned interior, where a spacious open plan kitchen and dining area (complete with a separate utility room) forms the heart of the home, ideal for every-day living. The generously sized lounge provides an inviting space, while a convenient downstairs WC adds practicality for busy family life.
Upstairs, the principal bedroom impresses with its own dressing room and an ensuite. Two further well-proportioned bedrooms and a main bathroom (featuring full height tiling for a sleek, contemporary finish) ensure ample space for family or visiting guests.
The property is future-proofed with an array of energy-efficient features, including an air source heat pump, solar panels to help reduce running costs, and an electric vehicle charging point. A single garage and off-street parking for up to three cars provide excellent convenience for modern living. Located just minutes from the M1 motorway, with swift access to both northern and southern destinations, as well as nearby rail connections and airports.
Lounge 16' 3" x 10' 10" (4.95m x 3.30m)
Kitchen/ Dining 18' 6" x 19' 1" (5.64m x 5.82m)
Utility 5' 8" x 4' 0" (1.73m x 1.22m)
WC 4' 9" x 3' 4" (1.45m x 1.02m)
Principle Bedroom 11' 0" x 10' 9" (3.35m x 3.28m)
Dressing Room 6' 7" x 8' 1" (2.01m x 2.46m)
Ensuite 4' 8" x 6' 8" (1.42m x 2.03m)
Bedroom 2 10' 4" x 8' 2" (3.15m x 2.49m)
Bedroom 3 7' 6" x 10' 8" (2.29m x 3.25m)
Bathroom 6' 8" x 6' 4" (2.03m x 1.93m)
Disclaimer
Wilson Estate Agents has prepared these property particulars as a general guide for prospective purchasers. While every effort has been made to ensure accuracy, all descriptions, dimensions, references to condition and necessary permissions for use and occupation are given in good faith and believed to be correct, but they are not intended to constitute part of an offer or contract.
Any intending purchasers should not rely on them as statements or representations of fact, but must satisfy themselves by inspection or otherwise as to the correctness of each of them. All measurements are approximate, and the services, systems, and appliances shown have not been tested by Wilson Estate Agents and no guarantee as to their operating ability or efficiency can be given.
We recommend that all information provided is verified independently by prospective buyers, including but not limited to title, tenure, and planning consents.
- The Shelby | Three-Bedroom Detached Home
- Exclusive Development Consisting of 22 Bespoke Homes
- Fitted With Solar Panels To Enhance Energy Efficiency and Reduce Running Costs
- Future-Ready Home With Electric Vehicle Charging Point
- Countryside Walks On Your Doorstep
- M1 Motorway Just Minutes Away, Offering Quick Links North And South, With Nearby Rail Connections And Airports
- Full Height Tiling In Bathrooms & Ensuites
- Turfed Gardens
- Modern Home Featuring An Air Source Heat Pump
- First Release Now Available
Location
The Shelby, Bromley Gardens, Mastin Moor


